Mensa Kamp Lintfort
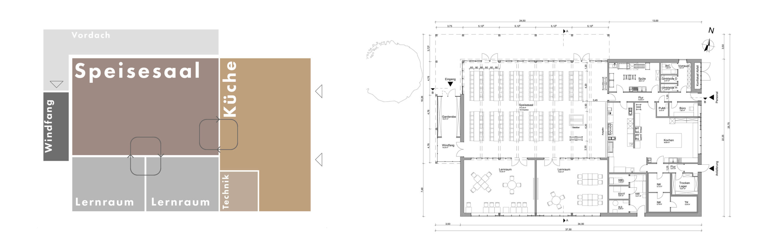
Die Mensa soll auf dem Schulhof der Europaschule im Bereich der jetzigen Hausmeisterwohnung, an der Sudermannstraße errichtet werden. Der Zugang erfolgt über den Schulhof durch einen Windfang, in den eine Garderobe mit beidseitigen Abstellflächen integriert wird. Der Speisesaal ist zum Schulhof hin ausgerichtet und öffnet sich durch eine Überdachung zum Außenbereich. Die beiden Lernräume orientieren sich zur Straße hin. Aufgrund der offenen Gestaltung durch großzügig verglaste Flächen öffnen sich die beiden Lernräume zum Speisesaal. Die Küche und seine Nebenräume sowie die Technikräume be-finden sich rechts vom Speisesaal/ Lernräume. Für die Anliefe-rung und den Zugang des Personals ist ein separater Bereich vorgesehen, der sich auf dem Grundstück der Ernst-Reuter-Schule rechts neben dem Neubau der Mensa befindet. Die Ausrichtung des Gebäudes folgt der Flucht der Europaschule. Die Fassade wird in Klinkeroptik, in Anlehnung an den Bestand geplant.




