Heilig-Geist-Quartier, Südallee

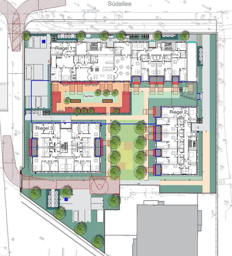
Das neue Wohnquartier Südallee 98 in Urdenbach, soll auf dem Grundstück der Heilig-Geist Kirche der Evangelischen Kirchengemeinde Urdenbach erbaut werden. Auf dem Grundstück entsteht eine Wohnanlage mit 65 Wohneinheiten, eine Tagespflegeeinrichtung und ein Gemeinwesenraum. Es sind unterschiedliche Wohnungsgrößen für Familien und Senioren geplant. Die kleineren 2-3 Zimmer Wohnungen sind hauptsächlich für Senioren, die größeren 3-4 Zimmer Wohnungen für Familien vorgesehen. Von den 2- Zimmer Wohnungen sollen 17 WE vom Land NRW gefördert werden. Die Kirchengemeinde bleibt mit ihrem Gemeinwesenraum vor Ort präsent und stellt weiterhin Angebote für interessierte bereit. Zusätzlich wird ein Beratungsbüro für die Bewohner des Gesamten Quartiers eingerichtet. Die vorhandene Kindertagesstätte erhält eine neue sichtbare Adresse, in der der Zugang, die Mülltonnen, Parkplätze und Feuerwehraufstellfläche in einem Bereich zusammengefasst sind.